triangles soar at ‘kuma technical high school’ by workstation
image © nagaishi hidehiko
all images courtesy of workstation

 

 

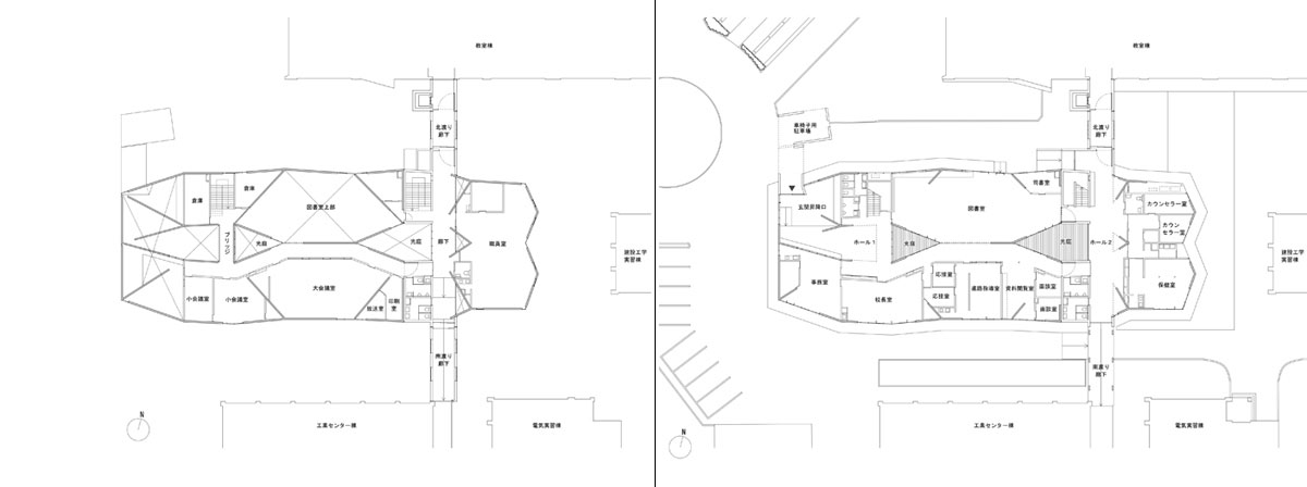
yokohama-based firm workstation have just completed the dynamically-volumed ‘kuma technical high school’ in the volcano-replete kumamoto prefecture. characterized by a skin of alternating bands of triangular wood and mullioned glazing, the school combines a warm, directional tectonic palette with an interplay of platonic masses. line and shape breed form by way of upended triangular plates alternately punctured with light-allowing apertures or seamlessly soaring around entranceways. while its primary programming tailored to the administration of the school, the distinct exterior finds its resonance and material equal in a primarily wood-clad and slatted space. paired with angled skylights and cuts of geometric glazing, the building is filled with shafts of natural daylight and set aglow with warm yellow hues at night. the school befits the landscape, what with its formal vocabulary all but an abstraction of nearby mt.aso.  

 

 

 

triangles soar at kuma technical high school by workstation

kuma technical high school is organized by both triangular subtracted masses and an angled wooden skin 

 

 

triangles soar at kuma technical high school by workstation

a geometric wooden skin creates a layered interplay of warm light, directional wood grain and mullioned glazing 

 

 

triangles soar at kuma technical high school by workstation

 triangular volumes and cladding help direct shafts of light and complex processional spaces 

 

 

triangles soar at kuma technical high school by workstation

 slatted ceilings meet interior plates, resulting in the dynamic and intimate space 

 

1/10
workstation: kuma technical high school administrative bldg.
 
workstation: kuma technical high school administrative bldg.
 
workstation: kuma technical high school administrative bldg.
 
workstation: kuma technical high school administrative bldg.
 
workstation: kuma technical high school administrative bldg.
 
workstation: kuma technical high school administrative bldg.
 
workstation: kuma technical high school administrative bldg.
 
workstation: kuma technical high school administrative bldg.
 
workstation: kuma technical high school administrative bldg.
 
workstation: kuma technical high school administrative bldg.