triptyque converts sao paulo warehouse into red bull station
all photos courtesy of triptyque architecture

 

 

 

triptyque architecture has completed the ‘red bull station‘, a cultural center located in downtown sao paulo, brazil. the project involves the renovation of an 88 year old structure that was formerly occupied by an electricity company.

 

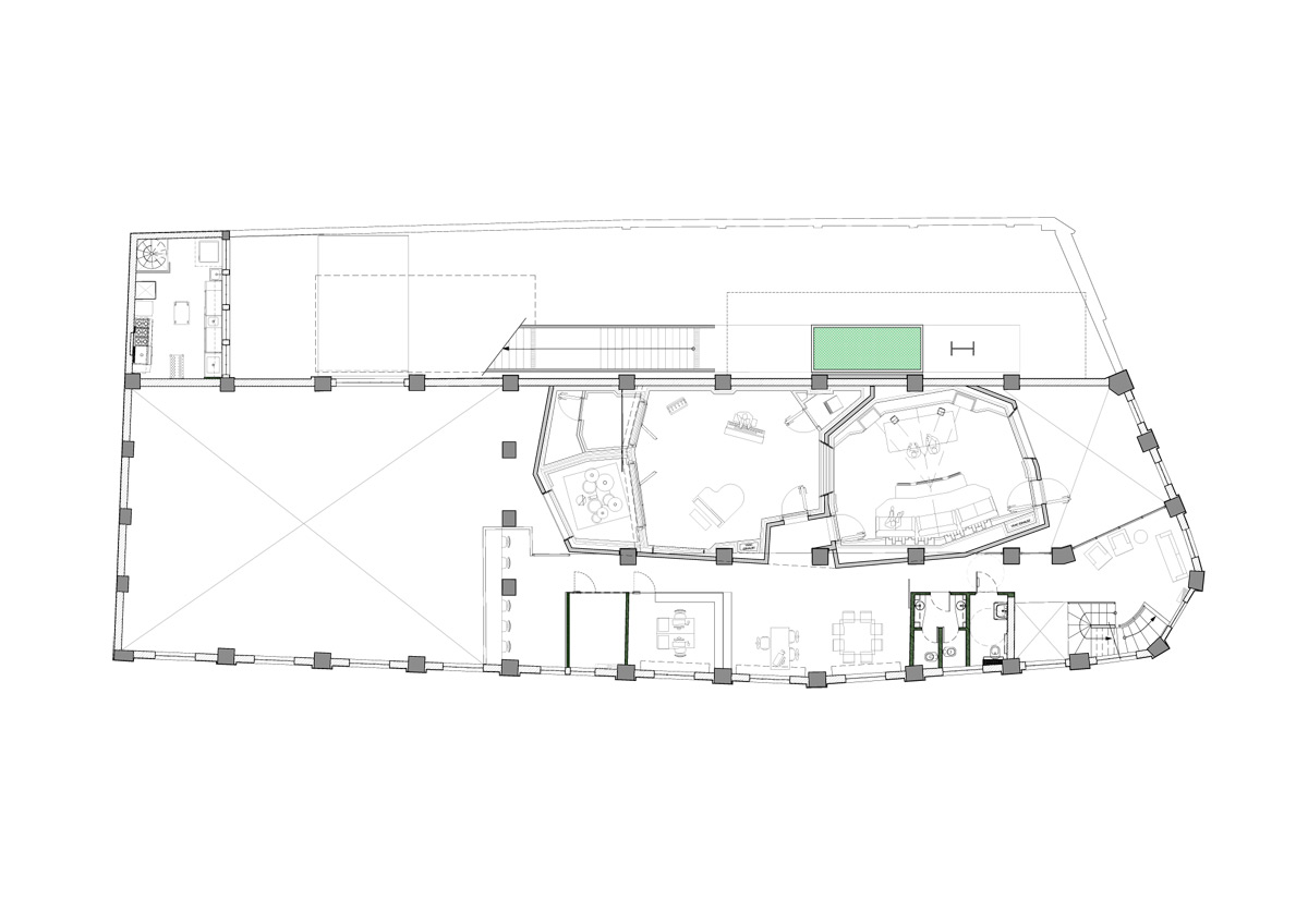
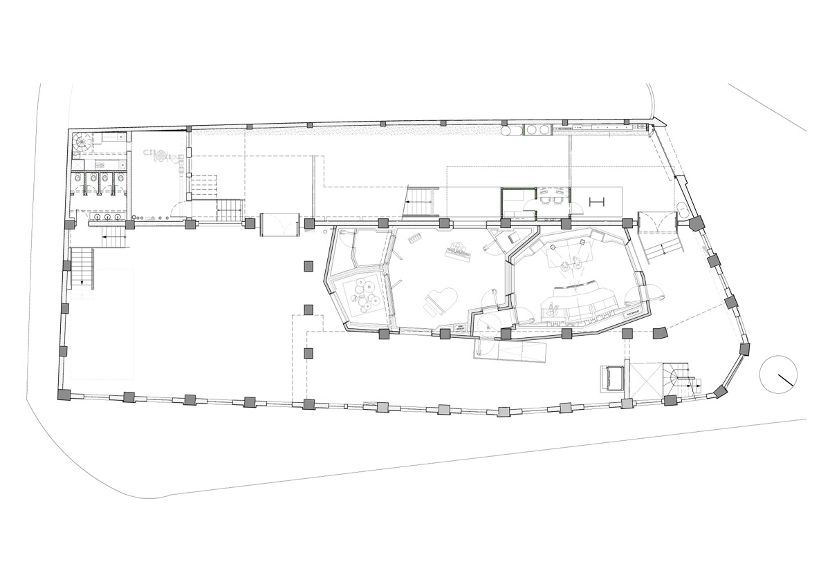
situated on bandeira square, the complex brings together audio and visual arts through the production and dissemination of new forms of artistic expression. the five floors of the station comprise a sound studio, a permanent residency program, three exhibition spaces, a terrace and a restaurant. the scheme encourages experimentation and the training of artists with numerous workshops, lectures and seminars.

triptyque red bull station cultural center designboom
the cultural center is located in downtown sao paulo

 

 

 

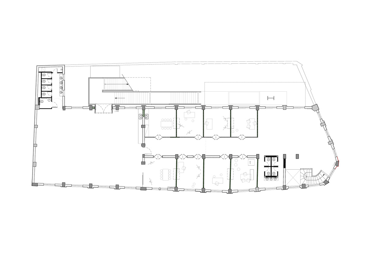
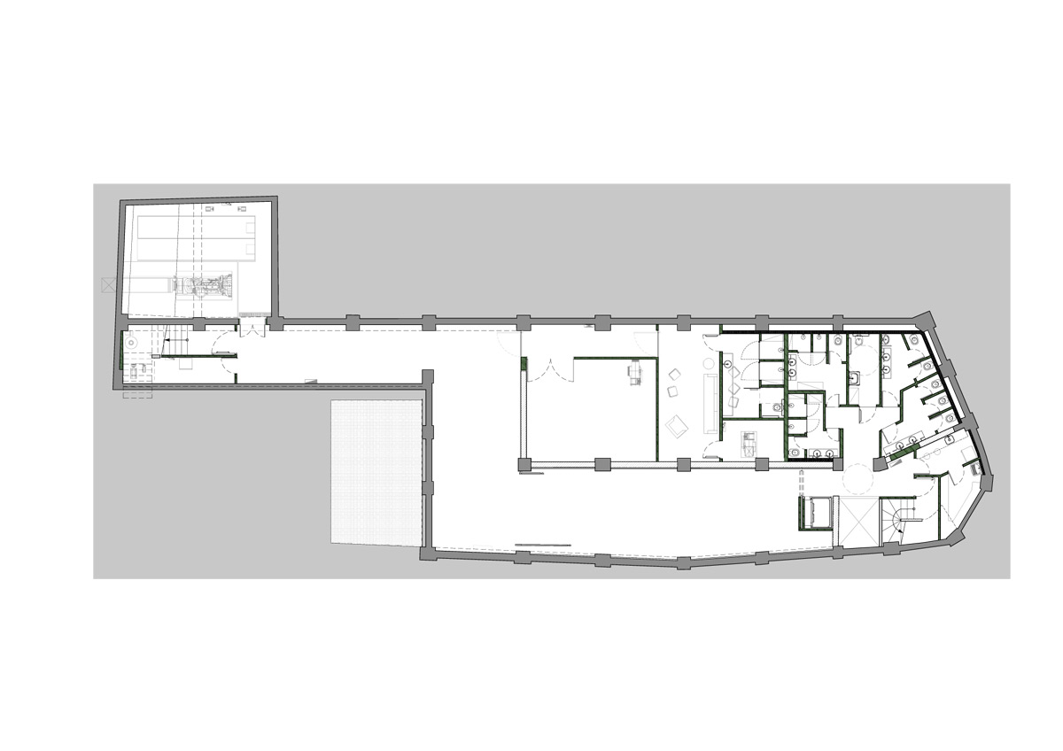
respecting the building’s architectural heritage, the intervention not only preserves the essence of the historic structure, but also reconsiders and strengthens the original design. the refurbishment is evident throughout the center, with a sheltered terrace at roof level serving as the centerpiece of the project. at ground floor level the main gallery is capable of accommodating a wide range of visual art, including performance based work. opposite, a concrete volume functions as a music studio, while the basement has been converted into further gallery space and rehearsal rooms. at the upper levels, six workshops that serve as artistic residences are connected to the ‘gallery of transition’, a space that temporarily hosts the designers’ creative projects.

triptyque red bull station cultural center designboom
respecting the building’s architectural heritage, the intervention preserves the essence of the historic structure

triptyque red bull station cultural center designboom
modern insertions have been made throughout the scheme
triptyque red bull station cultural center designboom
the complex brings together audio and visual arts

triptyque red bull station cultural center designboom
at ground floor level the main gallery is capable of accommodating a wide range of performances and exhibtions

triptyque red bull station cultural center designboom
a variety of exhibition spaces permeate the design

triptyque red bull station cultural center designboom
the scheme encourages both experimentation and the training of artists

triptyque red bull station cultural center designboom
the sheltered terrace at roof level serves as the centerpiece of the project

triptyque red bull station cultural center designboom
the ‘red bull station’ situated on bandeira square

 

1/16
triptyque red bull station cultural center designboom
 
triptyque red bull station cultural center designboom
 
triptyque red bull station cultural center designboom
 
triptyque red bull station cultural center designboom
 
triptyque red bull station cultural center designboom
 
triptyque red bull station cultural center designboom
 
triptyque red bull station cultural center designboom
 
triptyque red bull station cultural center designboom
 
triptyque red bull station cultural center designboom
 
triptyque red bull station cultural center designboom
 
triptyque red bull station cultural center designboom
 
triptyque red bull station cultural center designboom
 
triptyque red bull station cultural center designboom
 
triptyque red bull station cultural center designboom
 
triptyque red bull station cultural center designboom
 
triptyque red bull station cultural center designboom
 

 

project info:

 

name: red bull station
program: cultural center and contemporary art
delivery: october 2013
client: red bull
architect: triptyque
constructed area: 1,680 sqm
total area: 1,944 sqm

 

architect: triptyque
associates: gregory bousquet, carolina bueno, guillaume sibaud, olivier raffaelli
general coordinator: luiz trindade
team: paulo adolfo martins (project) / pedro de mattos ferraz (architect)
contributors: thiago bicas, ricardo innecco (architects) / luísa vicentini, sofia saleme priscila fialho, murillo fantinati, natallia shiroma (trainees)
project management redbull: jairo gen
photography: triptyque

 

suppliers
heritage and restoration: ana marta ditolvo
structure: companhia de projetos
foundations: solosfera geotecnia e consultoria em fundações
illumination: studio carlos fortes
facilities: sermon engenharia
fire: feuertec engenharia
waterproofing: proassp
air conditioning: systema
audio and video: SVA sistemas audio e video
acoustics: akkerman acústica engenharia
music studio: acousthink
air studio: fundament-AR engenharia