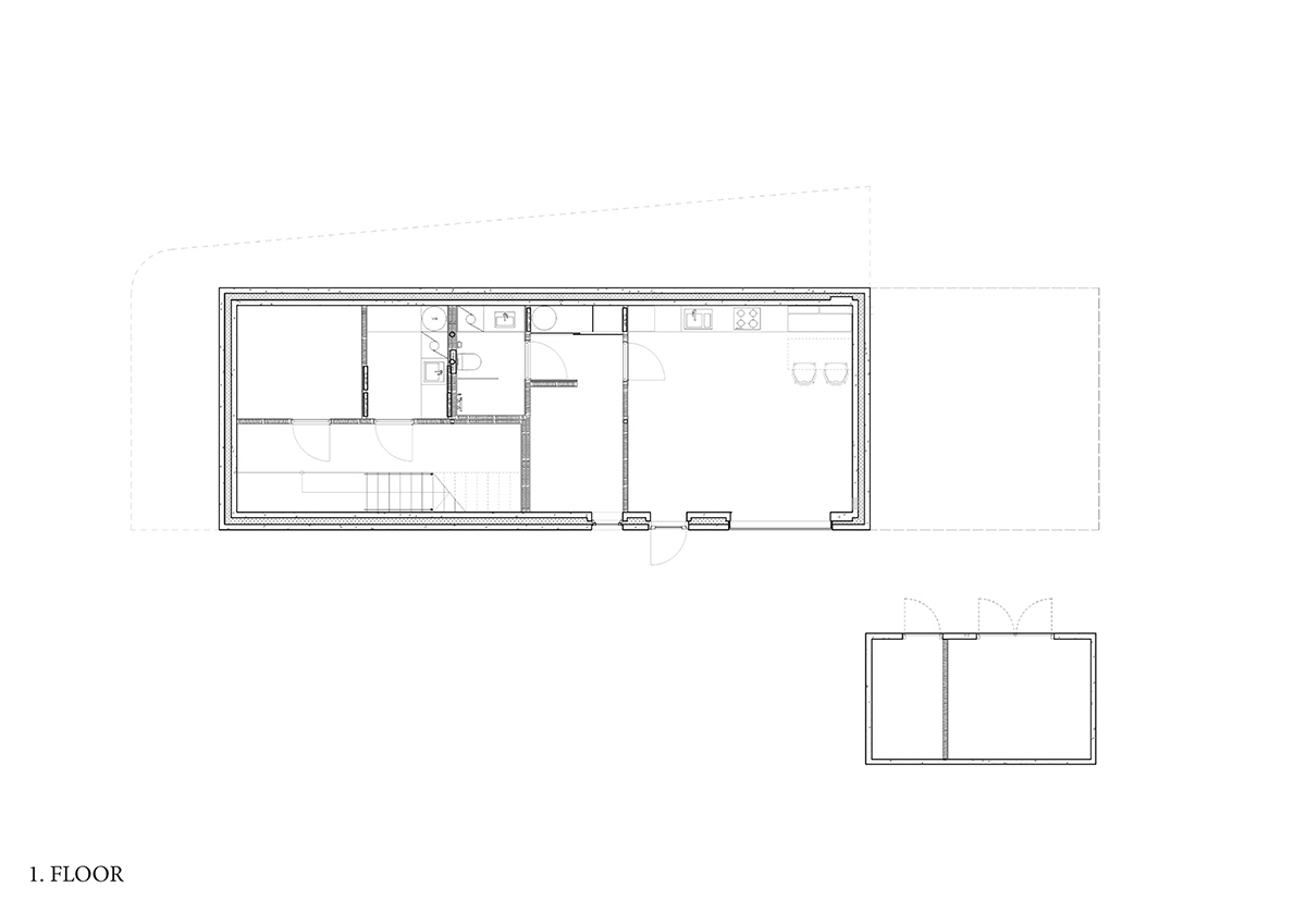
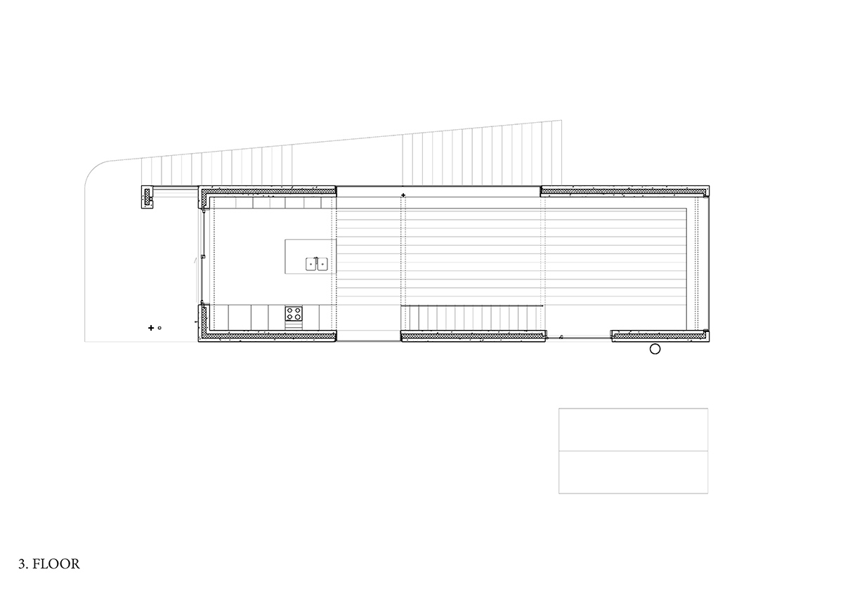
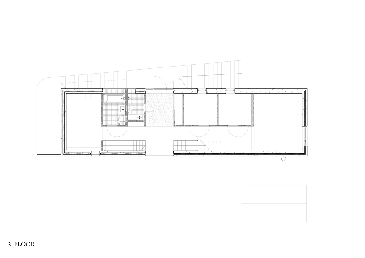
outside norway’s southwestern coastal town of sandnes town center, trodahl arkitekter introduces its alexander kielland house. the design team realizes the minimalist dwelling with a material palette that embraces the maritime climate and abundant rainfall of its context. the plot slopes steeply to the east, dropping about over twenty feet and overlooking the town below. the poured concrete structure encloses roughly 2368 square feet of floor space. to maximize the view and the late afternoon sunlight, the house is organized across three levels. the primary living areas are along the upper level, facing west, which accesses the upper garden where the landscape slopes up.

trodahl arkitekter alexander kielland
images  © rasmus norlander 

 

 

the design team at trodahl arkitekter realizes its alexander kielland house to perform within its rainy climate. rainwater is redirected along one side of the dwelling and collected into a standing water feature. while a wooden mezzanine above the kitchen introduces an intimate, sloping study nook. all non-opening windows are sealed directly into the concrete and are fit with broad concrete sills to provide seating. a long flight of  garden steps lead downward to the lower entrance on the second level, which houses three bedrooms and an entertainment lounge. here, the floors are finished with finely polished concrete screed. lighting fixtures are molded into the ceilings while the interior walls are built of pinewood paneling.

trodahl arkitekter alexander kielland trodahl arkitekter alexander kielland trodahl arkitekter alexander kielland trodahl arkitekter alexander kielland trodahl arkitekter alexander kielland trodahl arkitekter alexander kielland trodahl arkitekter alexander kielland trodahl arkitekter alexander kielland trodahl arkitekter alexander kielland trodahl arkitekter alexander kielland trodahl arkitekter alexander kielland trodahl arkitekter alexander kielland trodahl arkitekter alexander kielland

 

 

1/7
trodahl-arkitekter-alexander-kielland-house-designboom-015
 
trodahl-arkitekter-alexander-kielland-house-designboom-016
 
trodahl-arkitekter-alexander-kielland-house-designboom-017
 
trodahl-arkitekter-alexander-kielland-house-designboom-018
 
trodahl-arkitekter-alexander-kielland-house-designboom-019
 
trodahl-arkitekter-alexander-kielland-house-designboom-020
 
trodahl-arkitekter-alexander-kielland-house-designboom-021
 

project info:

 

project title: alexander kielland house

architecture: trodahl arkitekter

location: sandnes, norway

photography: rasmus norlander