
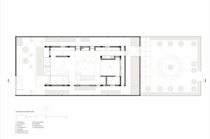
open-plan interiors stretch between gardens on either end

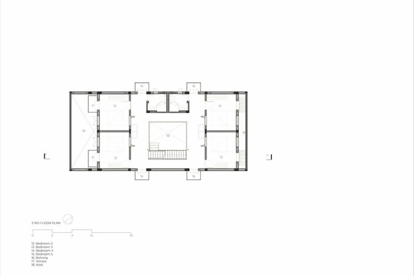
interiors are infused with lush landscaping and washed with ambient sunlight
KEEP UP WITH OUR DAILY AND WEEKLY NEWSLETTERS
watch a new film capturing a portrait of the studio through photographs, drawings, and present day life inside barcelona's former cement factory.
designboom visits les caryatides in guyancourt to explore the iconic building in person and unveil its beauty and peculiarities.
the legendary architect and co-founder of archigram speaks with designboom at mugak/2025 on utopia, drawing, and the lasting impact of his visionary works.
connections: +330
a continuation of the existing rock formations, the hotel is articulated as a series of stepped horizontal planes, courtyards, and gardens.
images © 


setback courtyards and multi-leveled screens lend a gradual boundary between the interiors and the street
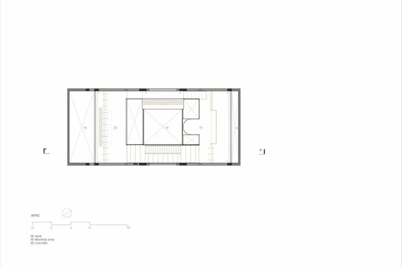
a central atrium void allows heat to rise and escape through the porous rooftop












