step inside an underground patio in northern italy designed by stefano larotonda

step inside an underground patio in northern italy designed by stefano larotonda

stefano larotonda excavates an open-air room IN ITALY

 

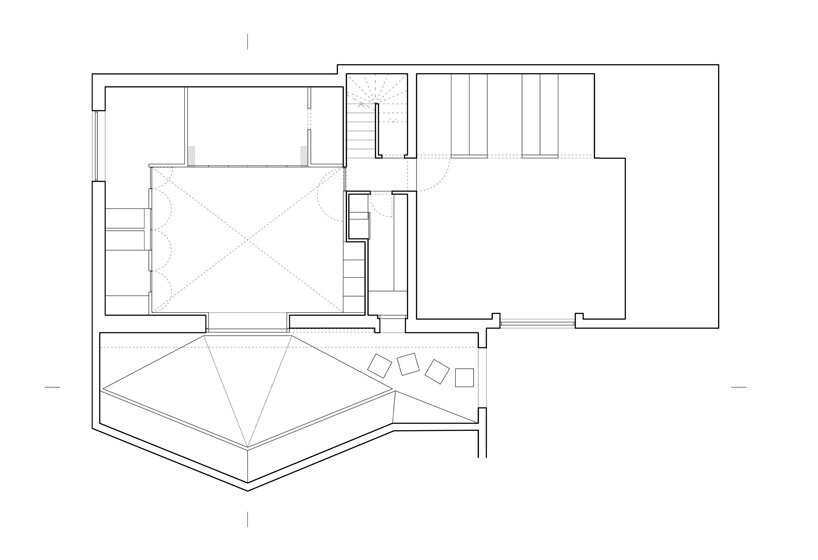
a perfectly circular opening leads into this renovation project in rovagnate, italy, realized by architect stefano larotonda in collaboration with andrea tregnago. the brief from the client was to create a new entrance, an outdoor area, and to renovate the existing basement in favor of a new space. after analyzing each requirement, the design team summarized them in one single gesture: excavation.

 

the final hollowed-out space meets all three needs: it defines a new entrance to the house, creates a generous outdoor room, and allows natural light to enter the renovated basement, which is now a multifunctional space.

step inside an underground patio in northern italy designed by stefano larotonda
images by marco cappelletti

 

 

the underground patio is surrounded by reinforced concrete walls that have been formed using vertical wooden slats and subsequently sandblasted. the timber formwork gives the walls a satisfying textured effect. concrete paving and gravel cover the ground, affording the perfect platform for outdoor dining or gatherings with family and friends. 

 

inside, the basement evokes tones of the surrounding mountain landscape; grey concrete clads the floor while the room is bordered by a series of internal partitions stained in forest green. overall, the material palette is pared back to just concrete and timber, letting the beautiful textures and new spatial experiences do the talking. 

step inside an underground patio in northern italy designed by stefano larotonda
a perfectly circular opening leads into the basement patio

step inside an underground patio in northern italy designed by stefano larotonda
the concrete paving is surrounded by gravel

step inside an underground patio in northern italy designed by stefano larotonda
vertical timber formwork has left an impression of wood on the concrete

step inside an underground patio in northern italy designed by stefano larotonda
the renovated interior features green stained timber

stefano-larotonda-underground-patio-italy-designboom-10
KEEP UP WITH OUR DAILY AND WEEKLY NEWSLETTERS
suscribe on designboom
- see sample
- see sample
suscribe on designboom

architecture in italy (658)

dbinstagram (2250)

renovation and restoration architecture and design (1160)

residential architecture and interiors (4757)

X
5