urbanika utlizes rough brick pattern for community boxing gym
all images courtesy of urbanika

 

 

 

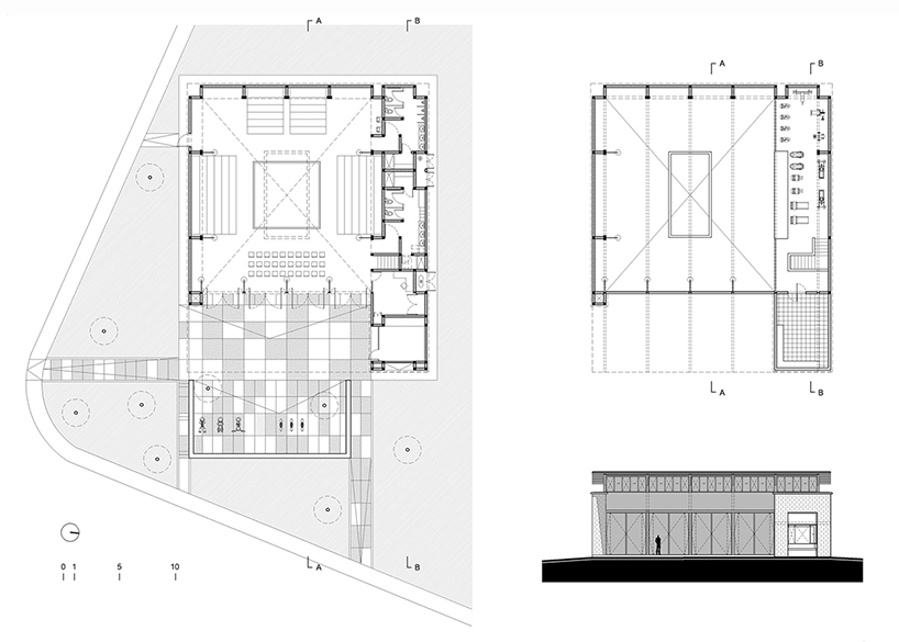
featuring a rough exterior skin, the municipal boxing gym by mexican studio urbanika has a handcrafted façade that permeates through to the inside of the building. located in the city of chihuahua, mexico, a base was needed to house the local community’s boxing program, while also functioning as a public amenity building. the textile quality of the stone-faced concrete-brick façade helps to leverage the value of the new venue, encouraging usage and respect from its neighbors. the center is able to replace the informal spaces that were previously provided for training – such as residential garages, courtyards and outdoor areas. extending from the interior, a 200 square meter plaza has been included – it is protected by a cantilevered structure, offering shade and enabling it to be activated even when the gym is closed. 

 

 

urbanika utlizes rough brick pattern for community boxing gym
the plaza is an extension of the gym

 

 

the structure is formed using exposed concrete columns and slabs, resulting in a low-maintenance building. directly above the boxing ring, translucent panels and a hanging box that concentrates light onto the confrontation area, heightens the sense of tension. there is also a small retail space, which economically supports volunteering instructors and on the second level, a weightlifting and a private training area complete the architectural program.

 

 

urbanika utlizes rough brick pattern for community boxing gym
training below the mezzanine

 

 

urbanika utlizes rough brick pattern for community boxing gym
private area for boxers

 

 

urbanika utlizes rough brick pattern for community boxing gym
private area for concentration

 

 

urbanika utlizes rough brick pattern for community boxing gym
a space for all ages 

 

 

urbanika utlizes rough brick pattern for community boxing gym
the handcrafted exterior consists of a pattern of rotated, stone-faced concrete-brick walls

 

 

urbanika utlizes rough brick pattern for community boxing gym
detail of the wall’s texture

 

 

urbanika utlizes rough brick pattern for community boxing gym
inauguration day fights

 

 

urbanika utlizes rough brick pattern for community boxing gym
portraits of users by guadalupe campos

 

 

urbanika utlizes rough brick pattern for community boxing gym
isometric drawing

 

 

urbanika utlizes rough brick pattern for community boxing gym
plans / mezzanine

 

 

designboom has received this project from our ‘DIY submissions‘ feature, where we welcome our readers to submit their own work for publication. see more project submissions from our readers here.