vietnam-based firm VTN architects (vo trong nghia architects) completes the bucolic ‘stepping park house’ in ho chi minh city. because the firm was presented with the rare opportunity of designing on a site adjacent to a public green space, the residence was realized as a living extension of its surroundings. the lush greenery of the park seemingly grows into the house through every aperture, permeating throughout the interior. the stepping park house is one of the latest projects in a housing series called ‘house for trees.’ the shortage of green space in vietnam is causing such environmental concerns as urban flooding, overheating and air pollution. VTN architects addresses this problem by creating residential ‘green pockets’ throughout the city.

vo trong nghia stepping park house
all images by hiroyuki oki

 

 

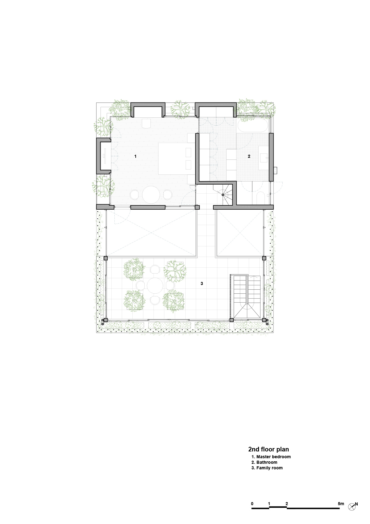
VTN architects introduces a vast, light-filled interior by cutting a large void through the tree floors. the facade is surrounded by a skin covered with ivy plants, introducing filtered sunlight. while the living space on the ground floor opens to a surrounding garden leading toward the park, a second living space occupies the top floor beneath a vast skylight overhead. wooden louvres line this skylight, providing rhythmic shadowing which penetrates to the ground level. such natural elements as plants and trees are integrated throughout each area of the house, offering a sense of continuity with the park and a forested interior.

vo trong nghia stepping park house

 

 

contrary to the common spaces, private rooms occupy solid volumes. trees integrated into the openings of these volumes serve to filter direct sunlight, cool the wind, and brighten the interior with greenery. the void which cuts vertically through the house enhances passive ventilation, minimizing active conditioning systems and energy use. walking through the space, the occupant feels the wind moving from the living room to the top floor of the house. the green facade eases the intense sunlight of the tropical climate. this model becomes a precedent for housing in tropical climates.

vo trong nghia stepping park house vo trong nghia stepping park house vo trong nghia stepping park house vo trong nghia stepping park house vo trong nghia stepping park house vo trong nghia stepping park house vo trong nghia stepping park house vo trong nghia stepping park house vo trong nghia stepping park house vo trong nghia stepping park house vo trong nghia stepping park house vo trong nghia stepping park house vo trong nghia stepping park house

 

 

 

1/6
02. mat bang tang 1.3dm
 
02. mat bang tang 1.3dm
 
02. mat bang tang 1.3dm
 
33_2F
 
22_1F
 
44_RF
 

project info:

 

name: stepping park house

location: ho chi minh city, vietnam

design firm: VTN architects (vo trong nghia architects)

principal architects: vo trong nghia, hidetoshi sawa

project architects: nguyen van thien

contractor: wind and water house JSC

project year: 2018

photography: hiroyuki oki