KEEP UP WITH OUR DAILY AND WEEKLY NEWSLETTERS
the founders of amateur architecture studio have been appointed curators of the 20th international architecture exhibition, opening may 8th, 2027.
connections: 12
the project sits like a ring placed over the terrain, with its funnel-like roof forming a shaded perimeter walkway and an introverted core.
'this building says to the world, harlem matters. black art matters. black institutions matter,' raymond j. mcguire, chairman of the board of trustees, said during the museum's preview opening.
snøhetta wins an international competition to design the qiantang bay art museum for the riverfront of hangzhou.


urban courtyard image © angel baltanas
exterior
approach image © angel baltanas
elevation image © angel baltanas
elevation image © angel baltanas
approach with urban courtyard image © angel baltanas
gabion stone elements outlining lower perimeter
curtain wall image © angel baltanas
ground level image © angel baltanas
first level terrace image © angel baltanas
aluminum mesh screens image © angel baltanas
entry image © angel baltanas
interior patio image © angel baltanas
interior courtyard
courtyard roof with skylights image © angel baltanas
form evolution
watercolor sketch
site plan
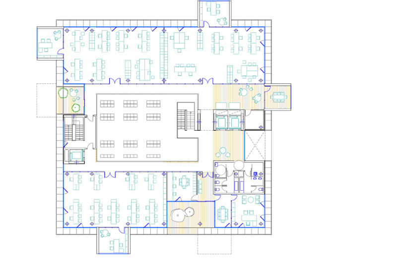
floor plan / level 0
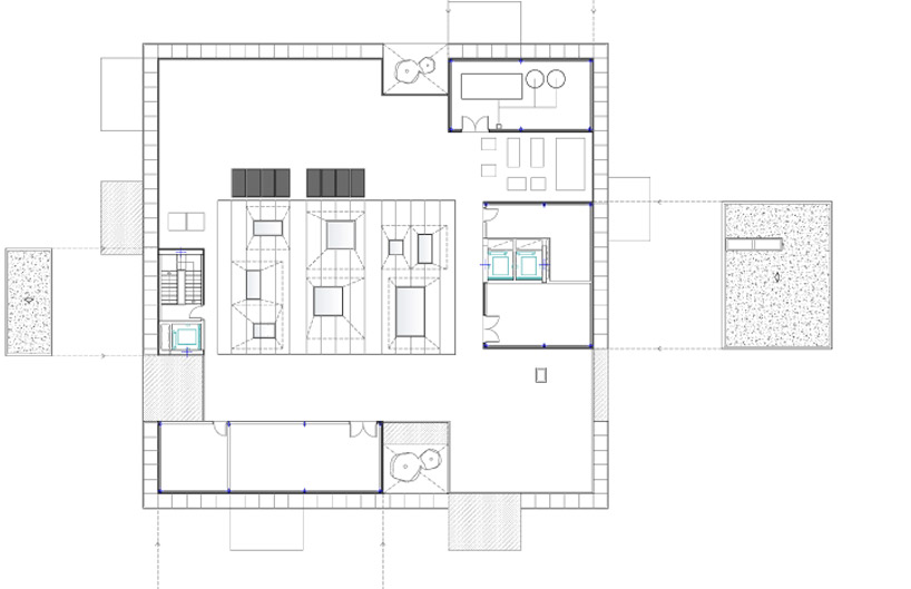
floor plan / level 2
floor plan / level 3
roof plan
section
section
elevation
elevation
wall section