holzrotonda balances with reduced spatial & carbon footprint

 

Wirth Architekten’s Holzrotonda is a neo-Palladian dwelling in Rotenburg-Wümme, Germany. Comprising two stacked volumes, the upper significantly protruding over the lower, the structure rests on the boundary between town and country houses as initially mused by Andrea Palladio 450 years ago. The architect’s notions of how villas have recently become larger, single-family dwellings on the outskirts of cities finds relevance in the evolving contemporary landscape of German housing. The shift from standalone family homes to cohabiting spaces has been a steadily growing trend since 2001, resulting in 16.02 million such residences across Germany by 2020.

 

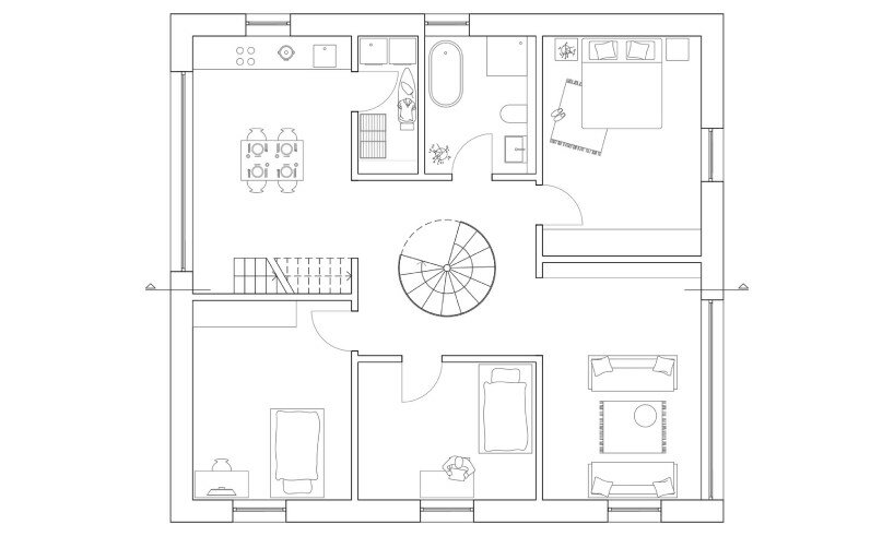
This phenomenon, though popular, raises concerns about the finite nature of available resources. The Holzrotonda addresses this paradox by minimizing both its spatial and carbon footprint. Unlike conventional houses that firmly touch the ground with their ground floors, this design reimagines the nature of the enclosed space by incorporating a cloakroom, a guest WC, and a storage room around a central, spiral staircase, with residential spaces balanced above.

wirth architekten balances neo-palladian dwelling on core concrete podium in germany
all images by Caspar Sessler

 

 

Wirth Architekten adopts cradle-to-cradle design ideology

 

Wirth Architekten’s sustainable considerations extend to the construction material palette, opting to avoid heavy, burnt veneer materials for the facade to sidestep any negative impacts on its overall energy balance during production and delivery. The architects have adopted a design that reduces the need for concrete and insulating materials to a minimum, aligning with the ethos of mindful resource utilization.

 

Internally, the Holzrotonda takes a bold stance against typical construction norms. Adhering to cradle-to-cradle principles, this absence of installation layers and plasterboard panelling, coupled with the deliberate exclusion of composite materials, facilitates potential dismantling and subsequent recycling.

wirth architekten balances neo-palladian dwelling on core concrete podium in germany
a neo-Palladian dwelling in Rotenburg-Wümme, Germany

wirth architekten balances neo-palladian dwelling on core concrete podium in germany
Holzrotonda balances with a reduced footprint, both figuratively and literally

wirth architekten balances neo-palladian dwelling on core concrete podium in germany
the interior design adheres to cradle-to-cradle principles

wirth architekten balances neo-palladian dwelling on core concrete podium in germany
the material palette and construction facilitates potential dismantling and subsequent recycling

wirth architekten balances neo-palladian dwelling on core concrete podium in germany
the material palette enhances insulation performance

wirth architekten balances neo-palladian dwelling on core concrete podium in germany

wirth architekten balances neo-palladian dwelling on core concrete podium in germany
a cloakroom, guest WC, and storage room encircle a central, spiral staircase

wirth architekten balances neo-palladian dwelling on core concrete podium in germany
the circulation spine supports the weight of the residential volume above

wirth architekten balances neo-palladian dwelling on core concrete podium in germany

 

1/7
 
 
 
 
 
 
 

project info:

 

name: Holzrotonda

architecture: Wirth Architekten   

location: Germany