wooden hedge facade enfolds villa on the coastline of stockholm

wooden hedge facade enfolds villa on the coastline of stockholm

‘Fenced Maximalism’ stands on a coastal area of Sweden

 

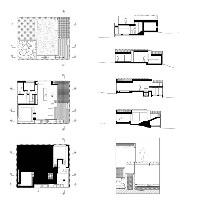
Swedish architectural studio Byggfenomen takes over a domestic villa program congested inside a fence-like facade located in a coastal area of Stockholm. Standing on the eastern waterfront region of the capital, the residence is surrounded by weathered pine trees that divide the landscape plane into vertical strips while the low and harsh ground cover gradually transforms into naked bedrock towards the waterline, a typical disposition of seafront topography. Emerging from the dense vegetation, the wooden cladding enclosing the structure expands vertically fusing with the woodland and leaving specific external surfaces uncovered. The openings set up glass frames overlooking the scenery. Deviating from conventional villa-type structures spreading the program on the site, ‘Fenced Maximalism’ assembles all functions within the defined plan, namely the lawn, flowerbed, pond, gravel, breakfast terrace, evening terrace, conservatory, social space, guestroom, bedroom, bathroom, wine cellar, kitchen.

wooden hedge facade enfolds villa on the coastline of stockholm
all images by Henrik Nielsen

 

 

The layout spreads ten levels treated with specific materiality

 

To avoid the elimination of trees and plantation on the site, the plot condenses all indoor and outdoor functions inside a strictly defined plan forming a fence structure that applies wood cladding throughout the exterior. The double-skin facade blends with the surrounding nature allowing open views from specific parts where the hedge subsides and through the vertical slits of the sheltering formation. The project by Stockholm-based studio Byggfenomen distributes ten levels laying out each zone on the plan treated with specific materiality.

 

The planes overlap and connect in a spiral-like circulation and the intersections are emphasized in different ways to allow sensory negotiations between the environments. The different layers of the construction present convenient spaces and features, such as the ‘Bacchus’ temple that shapes a folding framework stored beneath the building cooling the wine naturally before it is elevated into the common dining area. Another sufficient element is the rainwater collector holding the water on one floor and draining it as a natural shower in the pond below.

wooden hedge facade enfolds villa on the coastline of stockholm
the wooden cladding enclosing the structure expands vertically merging with the woodland

wooden hedge facade enfolds villa on the coastline of stockholm
the double-skin facade allows light to pass through the vertical slits of the sheltering formation

fenced-maximalism-byggfenomen-designboom-1800-2

Fenced Maximalism
a folding framework is stored beneath the building cooling the wine before it is elevated into the common area

fenced-maximalism-byggfenomen-designboom-1800-3

Fenced Maximalism
the rainwater collector holds the water on one floor and draining it as a natural shower in the pond below

Fenced Maximalism
the project distributes ten levels laying out each zone on the plan treated with specific materiality

Fenced Maximalism
the plot assembles all functions within the defined plan, such as the lawn, flowerbed, breakfast terrace and more

 

 

1/4
 
 
 
 

project info:

 

name: Fenced Maximalism
designer: Byggfenomen

design team: Philip Bergerhoff – Daniel Johansson | @conajin

photography: Henrik Nielsen | @studiohenriknielsen

 

 

designboom has received this project from our DIY submissions feature, where we welcome our readers to submit their own work for publication. see more project submissions from our readers here.

 

edited by: christina vergopoulou | designboom

KEEP UP WITH OUR DAILY AND WEEKLY NEWSLETTERS
suscribe on designboom
- see sample
- see sample
suscribe on designboom

happening now! swiss mobility specialist schindler introduces its 2025 innovation, the schindler X8 elevator, bringing the company’s revolutionary design directly to cities like milan and basel.

architecture in sweden (171)

facades (435)

residential architecture and interiors (4654)

wood and timber architecture and design (1345)

X
5