
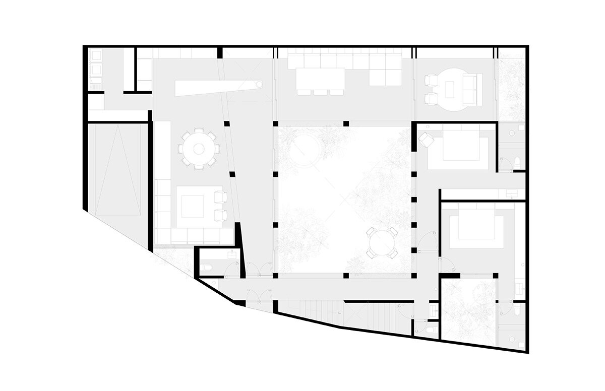
the project will be a tranquil escape from the bustling streets of San Miguel de Allende

the lush greenery balances the austerity of the white lime walls
KEEP UP WITH OUR DAILY AND WEEKLY NEWSLETTERS
the spiral structure is built from upcycled lantana camara, an invasive shrub introduced to india through colonial trade routes.
connections: +990
designboom discusses this creative boom with stefano boeri, MVRDV's winy maas, christian kerez, beat huesler of oppenheim architecture, and the team at bofill taller de arquitectura.
the proposal draws from a historic english architectural feature composed of alternating curves.
the zando central market redevelopment turns one of the congolese capital’s most vital spaces into an infrastructure for 20,000 vendors.
connections: +1830
images courtesy Juan Pablo Guerra


intimate, private gardens create a direct connection with nature from the interiors
the minimalist design will create an atmosphere of calm
