y+M design office wraps eaves around house in suburban kyoto
photo by yohei sasakura /sasa no kurasha
all images courtesy of y+M design office

 

 

 

in a suburban area of kyoto, japanese architects y+M design office has built a family home that provides its occupants with an abundance of natural light and ventilation. the two-storey property adjoins the home of the couple’s parents with a shared open space positioned between the two structures.

y+m design office eaves around house kyoto japan designboom
internal volumes are finished with pale timber furnishings
photo by yohei sasakura /sasa no kurasha

 

 

 

internally, voids allow for external views of the property’s surroundings, enabling the house to form a strong relationship with its context. the series of overlapping eaves prevents strong glare in summer, while welcoming warm sunshine during cooler months. consequently, the home requires very little mechanical heating and cooling, ensuring that the dwelling achieves a comfortable climate throughout the year.

y+m design office eaves around house kyoto japan designboom
voids within the design ensure an abundance of natural light and ventilation
photo by yohei sasakura /sasa no kurasha

y+m design office eaves around house kyoto japan designboom
a tatami room at ground floor level features a large glazed opening
photo by yohei sasakura /sasa no kurasha

y+m design office eaves around house kyoto japan designboom
greenery is interspersed throughout the residential dwelling
photo by yohei sasakura /sasa no kurasha

y+m design office eaves around house kyoto japan designboom
the two-storey property adjoins the home of the couple’s parents
photo by yohei sasakura /sasa no kurasha

y+m design office eaves around house kyoto japan designboom
internally, openings allow for external views of the property’s surroundings
photo by yohei sasakura /sasa no kurasha

y+m design office eaves around house kyoto japan designboom
the series of overlapping eaves prevents strong glare in summer, while welcoming warm sunshine during cooler months
photo by yohei sasakura /sasa no kurasha

 

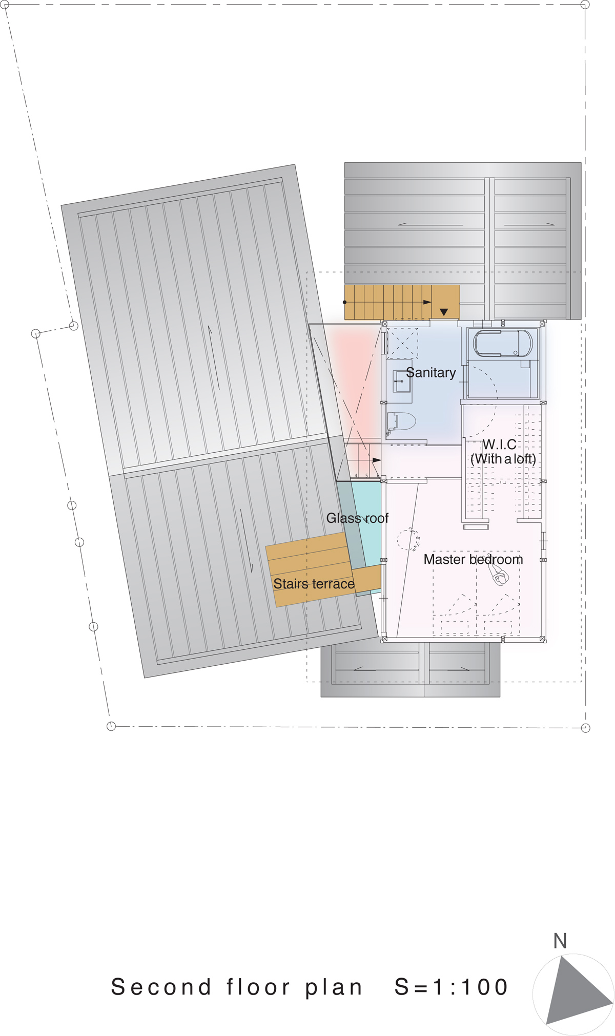
drawings

1/8
y+m design office eaves around house kyoto japan designboom
 
y+m design office eaves around house kyoto japan designboom
 
y+m design office eaves around house kyoto japan designboom
 
y+m design office eaves around house kyoto japan designboom
 
y+m design office eaves around house kyoto japan designboom
 
y+m design office eaves around house kyoto japan designboom
 
y+m design office eaves around house kyoto japan designboom
 
y+m design office eaves around house kyoto japan designboom
 

 

project info:

 

location: kyoto, japan
use: residential
site area: 203.31 sqm
building area: 84.45 sqm
total floor area: 119.88 sqm
structure: wooden construction
photography: yohei sasakura /sasa no kurasha