the raw and authentic nature of zotov & co’s ukraine office
all images courtesy of zotov & co

 

 

during the process of starting your own company, you have to know the characteristics that define you and the goals that you would like to achieve with your vision. this leads to a series of studies, searching for the perfect logo, branding standards, and eventually, your own office. for zotov & co, the architecture firm has done exactly this with its ukraine headquarters.

zotov and co office ukraine
the separate exit door

 

 

 

upon approach, visitors are greeted by a façade whose bricks and mortar have been blended together with a coat of black paint. the darkness provides a contrast to an exit door, which distinguishes itself as a metal door patterned with streaks of rust and an enlarged version of the studio’s emblem.

zotov and co office ukraine
view of the entry next to the conference room

 

 

 

the raw and authentic aesthetic of the exterior is multiplied tenfold on the interior, as several steps lead down into the space. the perimeter continues the outer layer of preserved clay units, with each one revealing its own unique lifetime within the office. one corner has been zoned off from the other functions as the conference room through two walls formed from large glass panels.

zotov and co office ukraine
office

 

 

 

the work areas are negotiated by wooden rolling credenzas for everyday personal items hidden below timber tabletops. the desks have been arranged perpendicular to the long axis of the room, resulting in an adjacent straight corridor towards the bathroom and kitchen. above, white rectilinear shelves within an arm’s reach are occupied by books, documents, and remnants of previous projects.

zotov and co office ukraine
working place 

 

 

‘we were searching an office to rent, but all of the interiors were decorated with laminate, wallpaper, plastic, and trendy ‘peach’ colors. this space was not ‘spoiled’ yet. we believe that it is important not to do unnecessary things.’ – zotov & co

zotov and co office ukraine
conference room

zotov and co office ukraine
lobby 

zotov and co office ukraine
office 

zotov and co office ukraine
office 

zotov and co office ukraine
(left) kitchen 
(right) water closet 

zotov and co office ukraine
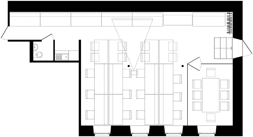
plan

 

 

 

designboom has received this project from our ‘DIY submissions‘ feature, where we welcome our readers to submit their own work for publication. see more project submissions from our readers here.