
Future Abattoir + Cattle Hotel by VivianJ from australia
designer's own words:
The Wagyu Tower challenges the social impacts of locating an abattoir in the city through different strategies,raising awareness of cattle being a part of our community.
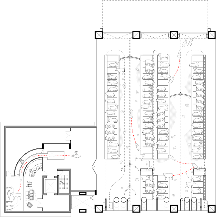
The tower is an abattoir with a cattle hotel consisting of a high-end restaurant where you will be able to bid and invest on your cattle.
Looking over the past few decades, ways of rearing cattle has not changed but technology has.
The State-of-the-art automated conveyor hanger system collects and delivers packed meals in parcels for the cattle throughout the tower.
The rectangular space frame structure sits on the abattoir columns to hold up the tower.
Space frames are held together by cross bracing exposed on the façade and spaces between them will accommodate all the vertical services.
The façade will be constantly animated with the movement of the busy moving parcels and lifts.
Well some might say that cattle consumption pollutes the environment, but with proper humane animal handling and today’s technological inputs, we can even make cattle consumption a sustainable one.
Whereby natural gas is generated by the methane collected from the cattle waste in the power station on the top of the tower.
To our calculations, this is even able to produce 5 times the energy of what the abattoir will consume every year!
To further commemorate cows for being part of our community, our club will hold an annual ‘running of the bulls’ like the one in Spain. Bulls and Cattle will run half a city block. Furniture retract to the ceiling and seating deployed to create a bull ring on the dining hall. While the spectators take their seating,the bull will then arrive at the centre of the bull ring via the central lift core.
Skyscraper Abattoir + Cattle Hotel
Abattoir 
Slaughter House Plan
Economy Class Cattle Hotel 
Cow Feeding System and Manure Collection System
The Abattoir hold “running of the bulls” event annually.