‘gelati factory’ by lionel debs architectures

 

 

 

france-based lionel debs architectures, has conceived the ‘gelati factory’, a minimal design solution for the interior retail space of the home-made italian style ice cream storefront. a large counter welcomes customers behind a glazed showcase, where an array of candy and toppings can be chosen to customize the flavor of the users ice cream. the shop is divided into two parts, separated by a multi-functional wall containing five soft serve machines and storage. both volumes, the counter and the central wall, define the shop organizational layout and covered in venetian mosaic tiles.

lionel debs architectures: gelati factory ice cream shop - 2 the counter and the multi-functional wall are covered with small venetian mosaic tiles

lionel debs architectures: gelati factory ice cream shop - 3 smooth colors and material detail

lionel debs architectures: gelati factory ice cream shop - 4 the multi-functional wall contains the ice cream machines and the hidden door to the backroom

lionel debs architectures: gelati factory ice cream shop - 5 study model

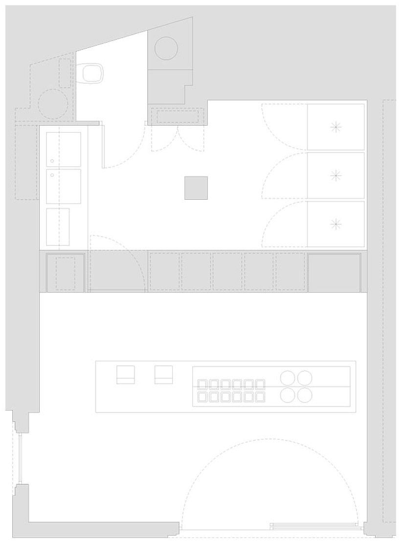
lionel debs architectures: gelati factory ice cream shop - 6 plan

lionel debs architectures: gelati factory ice cream shop - 7 multifunctional wall elevation

designboom has received this project from our ‘DIY submissions‘ feature, where we welcome our readers to submit their own work for publication. see more project submissions from our readers here.