KEEP UP WITH OUR DAILY AND WEEKLY NEWSLETTERS
dubbed the austrian power giants, these electricity structures are molded depending on the fauna representing the state.
connections: +740
chilean architect smiljan radić clarke receives the 2026 pritzker architecture prize for his atmospheric, material-driven architecture.
connections: 40
opening in april 25th, 2026, inside palazzo pisani moretta, the exhibition brings together fashion, art, and collectible design.
connections: +1720
bureau betak installs towering cranes, rendered in primary colors, that fill the vast nave beneath the iron-and-glass dome.
connections: +100

south perspective
west perspective
north perspective
perspective from the open circulation
mass diagram
sustainable design solutions diagram
layout plan
a-a section
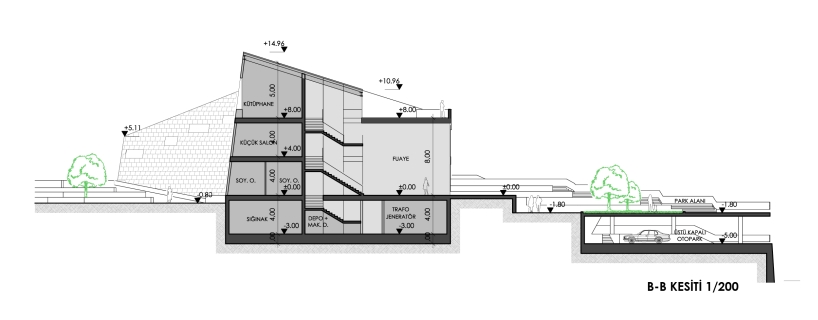
b-b section
section