
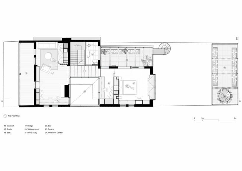
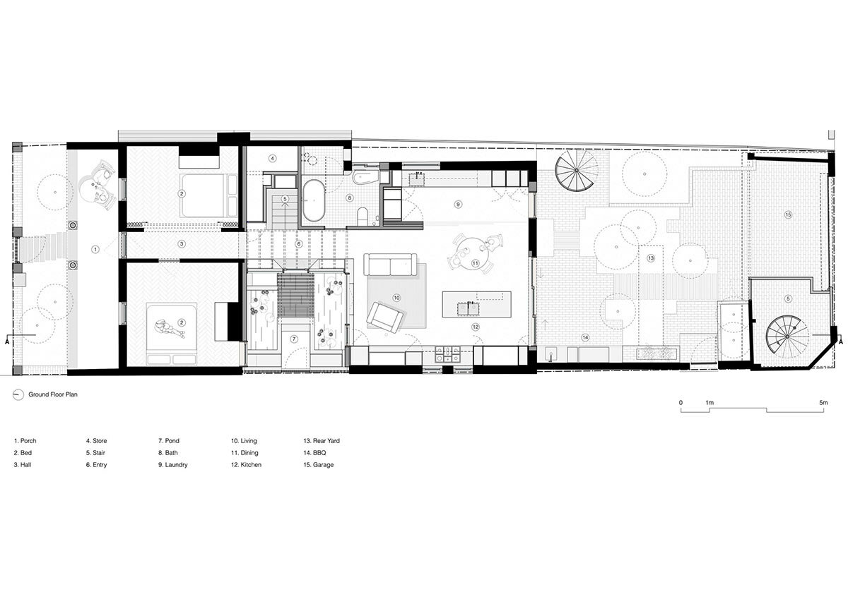
a towering sunlit atrium at Helvetia House floods the interior with natural light

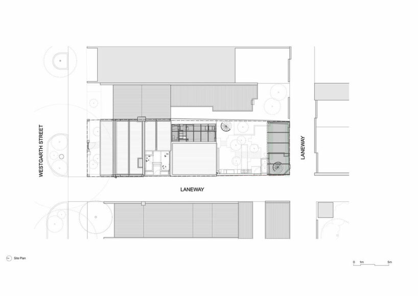
the project embraces sustainability with a productive garden at the rear, promoting eco-conscious living
KEEP UP WITH OUR DAILY AND WEEKLY NEWSLETTERS
happening now! swiss mobility specialist schindler introduces its 2025 innovation, the schindler X8 elevator, bringing the company’s revolutionary design directly to cities like milan and basel.
with the legendary architect's passing, we are revisiting the buildings that redefined what architecture could look and feel like.
connections: +210
the founders of amateur architecture studio have been appointed curators of the 20th international architecture exhibition, opening may 8th, 2027.
connections: 12
the project sits like a ring placed over the terrain, with its funnel-like roof forming a shaded perimeter walkway and an introverted core.
'this building says to the world, harlem matters. black art matters. black institutions matter,' raymond j. mcguire, chairman of the board of trustees, said during the museum's preview opening.
images © 
















